dachgeschossausbau kindergarten südergellersen, 2024

der kindergarten südergellersen mit 75 kindern benötigte mehr platz und eine zusätzliche gruppe um künftig bis zu 100 kinder betreuen zu können, die samtgemeinde gellersen und die gemeinde südergellersen einigten sich darauf eine ehemalige wohnung im dachgeschoss des altbaus der kita zuzuschlagen und auch das bisher ungenutzte dachgeschoss des neueren gebäudeteils auszubauen. es entstanden ein neuer gruppenraum mit wc-anlage und garderobe, sowie die für das größere team notwendige sozialräume, büros und besprechungsräume. neben einer neuen stahlaußentreppe zur entfluchtug des dg und des hochparterres wurden noch drei zusätzliche gauben gebaut. einer dieser gauben mit blick nach osten auf die felder und wiesen verdankt die kita ihren neuen namen „wiesenblick“. nachhaltigkeit und bauökologie sind uns wichtig und so fanden viele produkte auf holzwollebasis, zellulose, lehm, sislikatfarbe und linoleum verwednung. dank der guten zusammenarbeit mit der samtgemeinde und dem team der kita unter der leitung von katja schaffer konnten wir unsere planung im laufenden betrieb realisieren und ein schönes und spannendes ergebnis erzielen.
info: lp 1-9 - planungs- und umsetzungsteam hsr: henryk reimers, holger heckwolf, johannes isheim
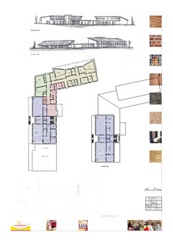
montessorischule, kinderhaus & ümi
unser büro konnte sich mit dem vorentwurf gegen mitbewerber durchsetzen, woraufhin 2013 die beauftragung der leistungsphasen 1-4 erfolgte. dem entwurf liegt die idee zugrunde alle nutzungseinheiten in einem gebäude unterzubringen ohne die individualität der unterschiedlichen nutzungen zu missachten.
so entstehen vielfältige wechselwirkungen und eine optimierte raumnutzung. den besonderen anforderungen der montessori-pädagogik an die grundrisse und räume wird in deren geometrie rechnung getragen. seit der erlangung der baugenehmigung wurden verschiedene möglichkeiten der finanzierung des bauvorhabens geprüft. schließlich wurde mit andreas wölk der partner für die umsetzung gefunden. neben der ausführungsplanung wurden hsr-architekten mit der gestalterischen bauleitung beauftragt.
da sich die anforderungen im laufe der zeit bis zur umsetzung veränderten wurde das gebäude um eine zusätzliche krippengruppe und eine 2. kindergartengruppe erweitert. insgesamt hat das gebäude eine nutzfläche von 1.440,00 m2.
projektleitung: henryk reimers mitarbeit: camillo dimai, luana thiel


die beiden renderings wurden von ARCHMODELL (www.archmodell.de) erstellt. danke dafür.
erweiterung der grundschule rotes feld
der entwurf und die umsetzung erfolgten durch henryk reimers im rahmen der tätigkeit für die gebäudewirtschaft der hansestadt lüneburg.
erweiterung anne frank schule, lüneburg
der entwurf und die umsetzung erfolgten durch henryk reimers im rahmen der tätigkeit für die gebäudewirtschaft der hansestadt lüneburg.
anbau herderschule, lüneburg
der entwurf und die umsetzung erfolgten durch henryk reimers im rahmen der tätigkeit für die gebäudewirtschaft der hansestadt lüneburg.




Große Version




